Код товара:
254613
Артикул:
E24156-NF
Характеристики
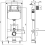
Ширина, см
—
50
Высота, см
—
115
Вес с упаковкой, кг
—
13
Габариты с упаковкой, см
—
109
В наличии
Юр. лицам
Запросить КП
Гарантия
10 лет
Предоставляется производителем
Описание
Инсталляция для подвесного унитаза jacob delafon e24156-nf со смывным бачком, с двойной системой смыва.
функциональность:
назначение: установка подвесного унитаза.
запорный клапан возможно установить с левой и с правой стороны.
возможность установки в маленькие ванные комнаты благодаря тонкому бачку 12,7 см.
простая установка и легкий доступ для технического обслуживания.
конструкция:
рама: стальной профиль с антикоррозийным покрытием.
высота рамы: до 115 см.
нагрузка: до 400 кг.
регулируемая высота ножек: 0 до 200 мм.
полипропиленовый бачок защищен от конденсации.
0,4 литра экономии воды благодаря системе задержки набора воды.
в комплекте поставки:
монтажная рама.
смывной бачок.
2 комплекта крепления.
Похожие товары
