Код товара:
254614
Артикул:
E33130RU-NF
Характеристики
Ширина, см
—
30
Высота, см
—
115
Вес с упаковкой, кг
—
11
Габариты с упаковкой, см
—
115
В наличии
Юр. лицам
Запросить КП
Гарантия
10 лет
Предоставляется производителем
Описание
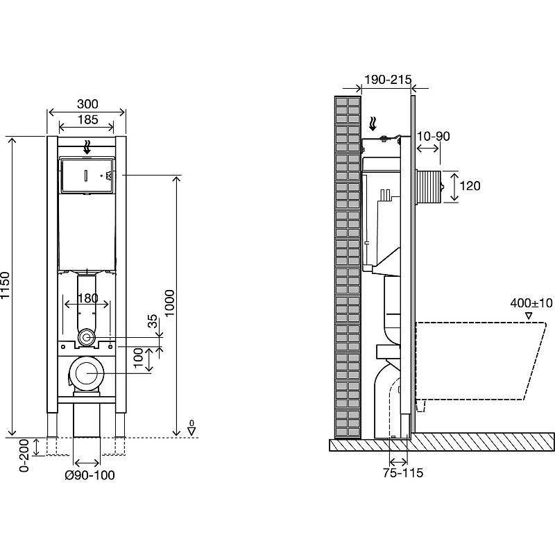
Инсталляция jacob delafon e33130ru-nf для подвесного унитаза со смывным бачком.
характеристики:
цвет: черный.
материал: латунь, пластик.
габариты (шхвхг): 30х115х21,5 см.
объем смывного бачка: 3/6 л.
управление: механическое.
высокоэффективная антикоррозионная обработка рамы.
режим слива воды: двойной.
регулируемые ножки: до 200 мм.
в комплекте поставки:
инсталляция.
Похожие товары
